One Stop Consult has engaged our supply chain partners to provide building control and 10-year structural warranty services for this exciting development in collaboration with Levison Rose Homes.
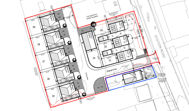
The project involves the erection of nine high-quality dwellings, including six two-bedroom detached bungalows, one three-bedroom detached house, and two four-bedroom detached houses. We are dedicated to ensuring that the development meets all relevant building regulations and quality standards, providing peace of mind to both the developer and future residents.
We will be providing regular updates and additional photos as the project progresses, so be sure to follow us for the latest news and insights.

