One Stop Consult is thrilled to announce our appointment by a regular and highly valued client for their latest development project. We are excited to be part of this new venture and look forward to delivering an exceptional outcome.
Our scope of services for this development project is extensive and includes Building Control, 10 Year Structural Warranty, Geotechnical Phase 1 Desk Study, and Design Testing Services.
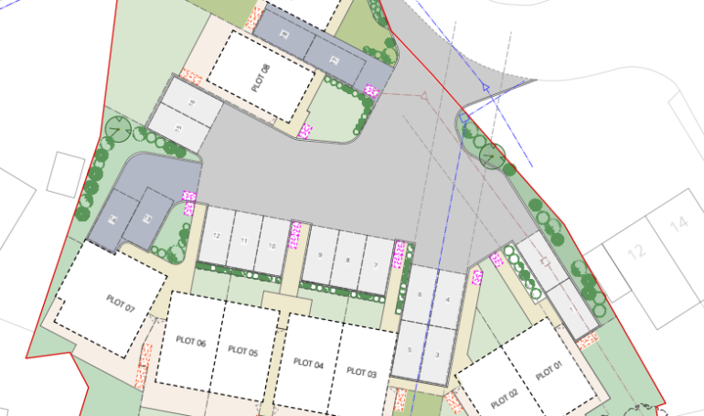
As the project is still in its early stages, we will be providing regular updates and photographs to keep our clients informed of its progress. The project involves the erection of 9No. dwellings, including Two Storey, Three Bedroom, Semi Detached Dwellings for Plots 1 – 6, and Two Storey, Three/Four Bedroom, Detached Dwellings for Plots 7 – 9.

