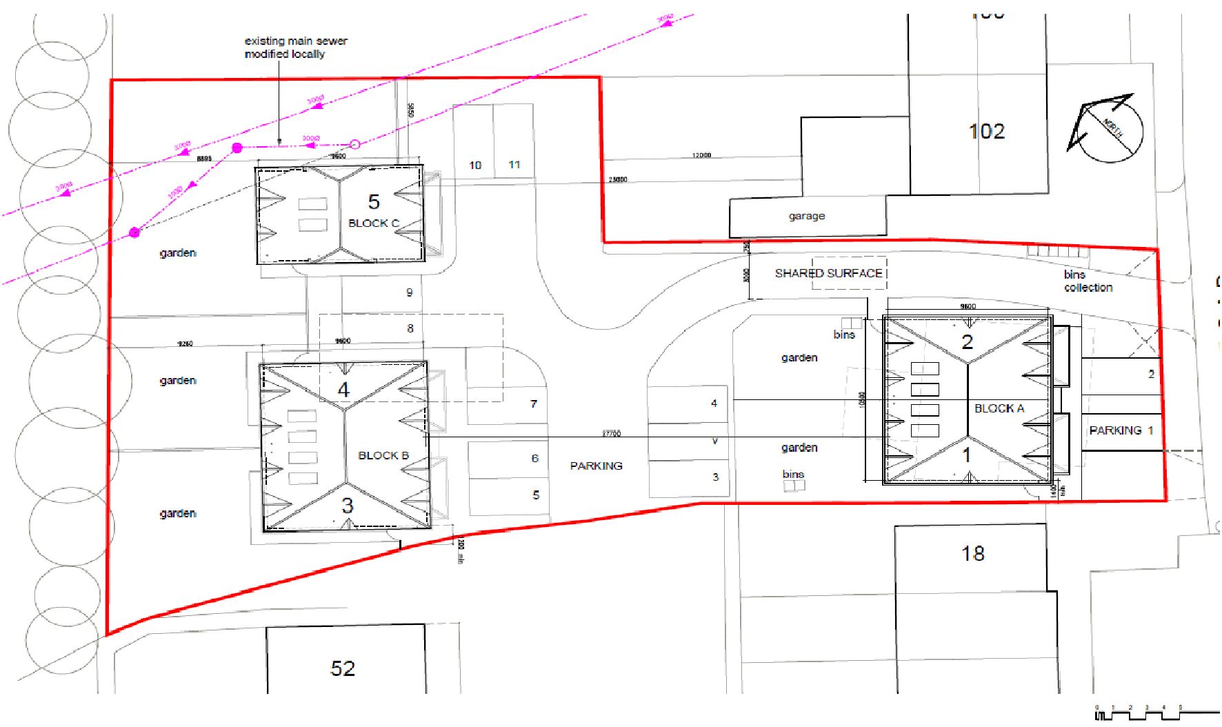
Our team are now underway with #UtilityApplications, #SAPCalcs, #WaterCalcs, #BuildingControl, as well as supply and installation of #PrecastConcreteFlooring for a development of 5 dwellings on the site pictured
Take a breath….
We’re not finished yet, further appointments have been secured under our multiple service discount package we offer for #As-BuiltSAPS, #EPC’s, #AirTest, #SoundTests and #VentTests and #Solar supply and install.
WHY WOULD YOU USE US?
Quick turnaround times on services from quote to completion
A comprehensive knowledge of the construction process
A contractual partnership with #SME’s
We are a small business ourselves, only formed in 2017!
We all work together as a close-knit team encouraging each other, learning everyday and providing an unparalleled service in the industry.
These are just a few advantages of why you should consider us and our team for your development project.
In addition to this we have reinvested in our business in the form of a bespoke portal system and employing a full-time dedicated web developer. We love what we do, we are growing, and we welcome new clients to get in touch should they need a helping hand.
#GetInTouch #OnceStopConsult #construction #building



